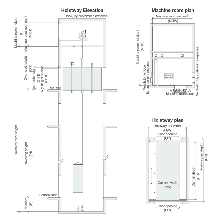
Car Elevator
In the contemporary urban landscape, the number of automobiles is steadily increasing. To address the parking challenges, Fujita leverages its well-developed Car Elevator technology to facilitate seamless transportation specifically designed for vehicles. Through a vertically-oriented approach, Take advantage of different capabilities and sizes to ensure unhindered mobility in your car.
We are committed to delivering superior quality and superior performance in all our products. If you want to know more about our Car Elevator issues and construction projects, please Contact US immediately and we will provide you with one-on-one service.
Advantage
Fujita's commitment to your safety
At Fujita, we understand that safety is of utmost importance to our valued customers. That's why our elevators are designed to meet stringent industrial standards, ensuring the highest level of safety. With the exceptional craftsmanship of Germany, we strive to provide the elevator market with saferproducts.
Unintended car movement prevention with UCMP device
Our elevators are equipped with the UCMP (Unintended Car Movement Prevention) device. This advanced system ensures that when an elevator stops at a landing and doors open, any unauthorized movement of the car without a specific order will be instantly detected. The UCMP device effectively arrests such movements, guaranteeing the safety of our passengers.
Remote monitoring through the Internet
At Fujita, we harness the power of the Internet of Things (IoT) to bring you unparalleled convenience and safety. Our world-leading IoT system enables automatic monitoring, inspection, and management of all elevators in a building. By regularly collecting data and providing timely troubleshooting, we ensure the continuous safety of our elevators.
Device for collision and derail prevention of car doors
To further enhance passenger safety, Fujita elevators are equipped with a cutting-edge device that prevents collision and derailment of the car doors. This innovative feature ensures that in the event of an impact, the doors are protected and remain on their designated track, guaranteeing the utmost safety for our passengers.
Infrared light curtain system for enhanced safety
At the entrance of every Fujita elevator, an infrared light curtain system is installed. This advanced technology swiftly detects the presence of any person or object within the detection area. By reacting promptly to any detected obstacles, the infrared light curtain system guarantees the personal safety of passengers as they enter or exit the lift car.
Your safety is our top priority at Fujita.
Specification
Fujita Car Elevator Technical Data Sheet.
Customized services
We can provide you with unique customized services based on your needs.
Services
Comprehensive and Global High-Quality Service Experience
Fujita elevators offer a comprehensive and global high-quality service experience. We have a unified service standard and maintenance process, ensuring that your elevator is maintained to the highest standards. Our inspection standard is more comprehensive, guaranteeing the safety and performance of your elevator.
Unified and Standardized Service
Similar to other modes of transportation, regular maintenance is essential to ensure the security and performance of your elevator. With Fujita, you can rely on our worldwide marketing service network to provide you with exclusive service. We meet all your service and maintenance requirements, from the beginning to the end of the product’s lifespan. Our all-day customer service is dedicated to serving you.
Tailored and Personalized Maintenance Plans
Each client’s data file is handled on a one-to-one basis, allowing us to formulate exclusive maintenance plans that meet your specific needs. Our aim is to provide you with personalized service that caters to your elevator’s unique requirements.
Intelligent Remote Monitoring
Fujita utilizes advanced smart systems to remotely monitor elevator operations. This allows us to have full control over safety information, ensuring a secure environment for users.
Dedicated Service Team
Our full-time service team is available 24 hours a day, ready to take orders and promptly respond to your demands. We prioritize quick and efficient solutions to meet your needs in a timely manner.
Elevator renovation
If your elevators are more than 10 years old, your building usage has changed, you're receiving complaints, or you're competing with newer buildings, then your elevator can benefit from a Fujita Elevator Modernization.
FAQ
Q1. About quotation?
Please send us an inquiry here, we will reply to you within 1 hour. You will get our quotation immediately if you can supply much more specifications about your inquiry.
Q2. Trade Terms & Payment Terms?
FOB/ CFR/ CIF/ CPT/ CIP/ DAT/ DDU & TT/ LC/ WESTERN UNION...
Q3. (Whole elevator) What information is absolutely needed before asking for the price?
A. Loading capacity or how many persons? ( eg. 6 persons for 450kg,8 persons for 630kg, 10 persons for 800kg, etc..)
B. How many floors/ stops/ doors?
C. What's the rated speed?
D. It will be with a machine room or without a machine room?
E. What's the step width, lifting height, and angle degree if it's the escalator?
Q4. (Spare parts of Lift and Escalator) What information is needed before asking for the price?
(1) Pls tell us the elevator or escalator brand name.
(2) Pls, send us the picture of that spare part, and especially for the data plate with specifications.
(3) Pls, tell us the order quantity. ( how many pcs you needed?)
Q5. What about the packaging?
All elevator parts will be packed into standard exported Plywood boxes. Generally, 1*20' container is enough to load 1 unit 10stops lift, 1*40 container is okay for 3units 10stop lifts.
Q6. How to do with the elevator installation and maintenance?
Normally we entrust our local agents to do this work. But if we don't have an agent in your local city, we can go and help you with the installation work, and we prefer to train your team how to do this work well if you want to make long cooperation with us.
International Shipping
We offer worldwide shipping for all Elevator and Escalator Parts, catering to your business needs. Whether by sea, air, or international express logistics through trusted providers like DHL, FEDEX, and UPS, we ensure Safety delivery. get a quotation , simply provide your name, email, detailed address, product specifications, and requirements. Our team will promptly reach out to you with comprehensive information, including the most suitable delivery method (fast, secure, and discreet) and freight options.
Related Products
Passenger Elevator、Home Elevator、Panoramic Elevator、Freight Elevator、Car Elevator、Hospital Elevator、Escalator&Moving Walk、Wheelchair Lift



